About
About Addison I
eBuilt
Clayton Built
Boujee Series
Baby Boujee
Boujee 56
Boujee 2
Boujee XL 2
Boujee Premier
Boujee LUX
Decor
Standards & Options
Tempo Series
Contact
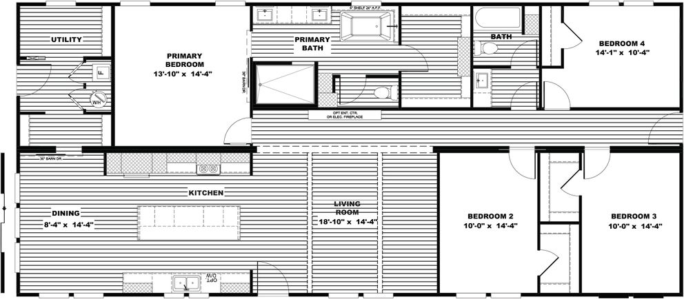
BOUJEE PREMIER
44BOU32684AH
4 BEDS
2 BATHS
2040 SQ FT
32X68
Floorplan
Photos
Virtual Tour
Floor Plan
Images
Previous
Next
Virtual Tour
*The home series, floor plans, photos, renderings, specifications, features, materials and availability shown will vary by retailer and state, and are subject to change without notice.